1. Accueil
  2. Achat
  3. Achat Appartement
  4. Achat Appartement Somme (80)
  5. Achat Appartement FORT MAHON PLAGE (80120)

Appartement F3 à vendre 3 pièces - 66 m2 FORT MAHON PLAGE - 80

Ref : 252

450 000 €

  • Honoraires charge vendeur
Appartement F3 à vendre - 3 pièces - 66.0 m2 - FORT MAHON PLAGE - 80 - PICARDIE - Century 21 Prestige Et Patrimoine
Appartement F3 à vendre - 3 pièces - 66.0 m2 - FORT MAHON PLAGE - 80 - PICARDIE - Century 21 Prestige Et Patrimoine
Appartement F3 à vendre - 3 pièces - 66.0 m2 - FORT MAHON PLAGE - 80 - PICARDIE - Century 21 Prestige Et Patrimoine
Envoyer un message
Message
Envoyer ce bien à un ami

Description

FORT MAHON PLAGE - BAIE DE SOMME
Une opportunité présentée par notre agence Century 21 Baie de Somme

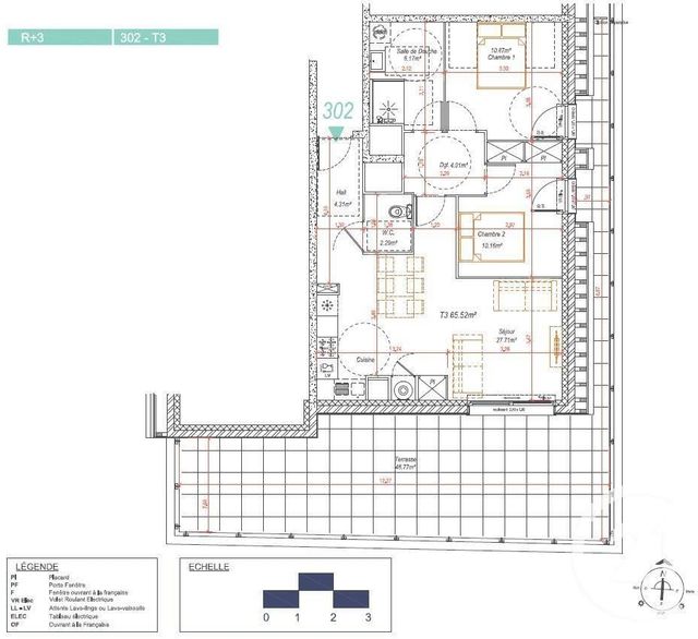
Situé à 1km de la plage et du Golf de Belle Dune, surprenant appartement neuf 2 chambres d'une surface de 65m² habitables et terrasse triple exposition de 48m².
Vendu avec double parking.

Frais de notaire réduits - Garantie Dommages ouvrage

Bien proposé en délégation.

AGENCE CENTURY 21
Avenue du verger
62520 LE TOUQUET PARIS PLAGE
03.22.23.19.19

Localisation

Laissez-nous vos coordonnées pour obtenir la localisation

Envoyer

Afficher sur la carte :

Demander la localisation

Vue globale

  • Surface totale : 66 m2
  • Surface habitable : 66 m2
  • Type d'appartement : F3
  • Étage : 3ème
  • Nombre de pièces : 3
    • Entrée (5 m2)
    • Séjour (28 m2)
    • Chambre (10 m2)
    • Chambre (10 m2)
    • Cuisine
    • Salle d'eau
    • WC
    • Terrasse (47 m2)

Équipements

Les plus

Dégagée

Général

  • Chauffage : Individuel electricité
  • Eau chaude : Ballon électrique
  • Ascenseur

À savoir

Copropriété

  • Nombre de Lots : 19
  • Charges courantes par an : 1300,0 €
  • Pas de procédure en cours

Les performances énergétiques

Non soumis au DPE

Envoyer à un ami

Envoyer

Envoyer un message :

Envoyer

Créer votre alerte

Rappel de vos critères de recherche :

Erreur dans les critères envoyés

Limite d'alertes atteinte

Cette alerte existe déjà

Cette alerte est déjà enregistrée pour cette adresse email. Vous continuerez à recevoir les biens correspondant à vos critères.

Une erreur est survenue

Merci de réessayer ultérieurement.

Votre alerte a été créée

Vous recevrez les biens correspondant à vos critères.

logo vente privées

48h

d’avance sur
le marché

Prenez un temps d’avance sur le marché en profitant gratuitement des Ventes Privées CENTURY 21

Si ce n’est déjà fait, allez compléter le profil de votre compte afin de pouvoir recevoir en avant-première des biens exclusifs, réservés à nos clients pendant les 48 premières heures suivant leur commercialisation.

Nos agences proposent régulièrement des biens comme celui que vous cherchez

Ne ratez pas une opportunité, on vous alerte en priorité !

Êtes-vous actuellement propriétaire de votre bien ?
Créer une alerte
Je souhaite être alerté
Voir les biens correspondants